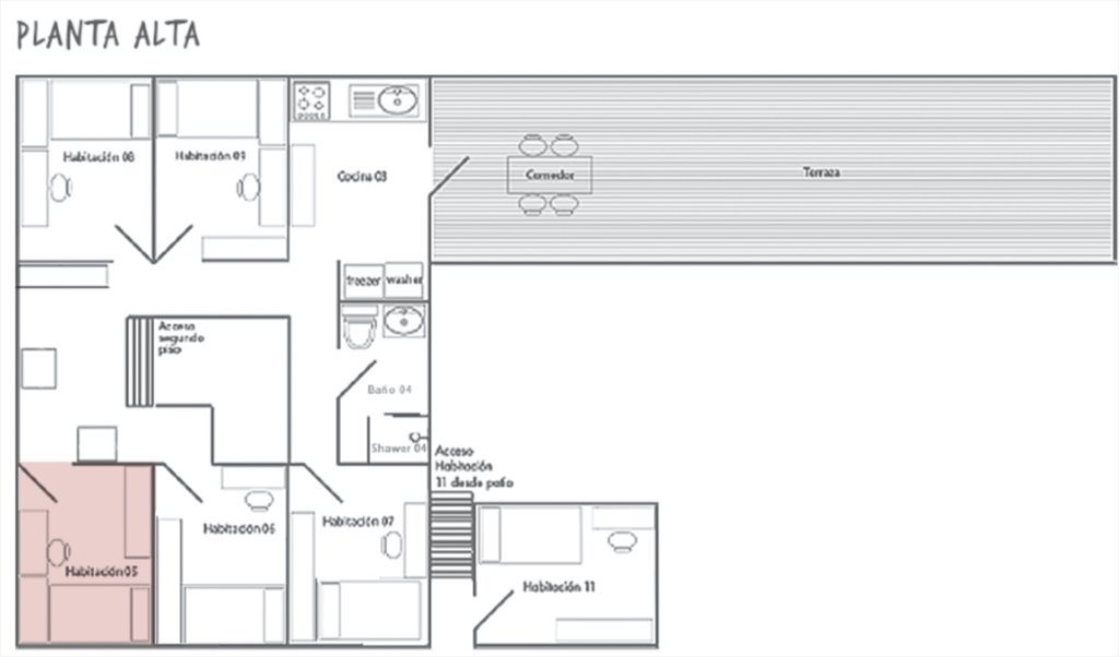
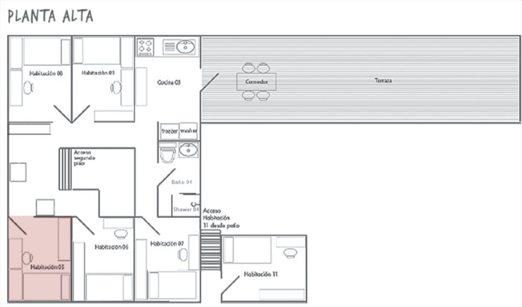
Acerca del depto

  • Casa
  • 9 piezas en total
  • 9 habitación/es (Individual) disponible/s
  • 4 baños
  • estancia mínima 3 meses
  • Disponible ahora
  • Amueblada
  • Balcón/ Patio
  • Internet

¿Quién vive en el depto?

9 mujer, de 18 a 30 años, estudiante, sólo se fuma afuera


Compañeros de depto Ideales

mujer


Descripción del pieza

Habitaciones para chicas de intercambio ó Chilenas. WIFI, agua, gas y luz, estamos a 9 minutos caminando del metro Salvador (Línea 1) o Baquedano (Línea 5), comuna de Providencia, barrio universitario, cultural y gastronómico. Lo más importante es que puedas compartir con armonía con el resto de la comunidad en un ambiente familiar e internacional, de respeto, tranquilo especial para estudios y descanso. Hablamos español para mejorar tu aprendizaje.


No. Aviso H130509232346441

Publicado el 21 noviembre 2025